XL21低压动力配电柜
产品介绍
XL21型低压动力配电柜,可广泛用于交流50Hz、额定工作电压为380V的冶金、矿山、石油、化工、电力、建材、机械加工、交通运输、宾馆、饭店等三相四线电力系统的动力配电和照明配电中,对线路的过载、短路及漏电提供保护,并对电路进行正常转换,该产品系户内封闭装置,其外壳防护等级为IP30 ,产品符GB7251.12及IEC60493-1等标准。
使用环境条件
海拔高度不得超过2000m。
环境温度不高于+40°C ,不低于10°C ,并且在24h内其平均温度不得高于+35°C。
周围环境相对湿度日在+ 40°C时不超过50%,在较低温度时,允许有较高的相对湿度(例如+20°C时为90% )。
运行地点无导电或爆炸尘埃、无腐蚀金属和破坏绝缘的气体或蒸汽。
地震烈度不超过8度。
设备安装垂直面的斜度不超过5度。
型号及其含义

结构特点
本低压动力配电柜(箱)系封闭式靠墙装置,系单面开门操作和维修的低压配电设备,基本结构用角钢及薄型钢板弯制焊接而成,具有通用性强,结构灵活,安装方便的优点;根据用户使用要求不同,分多种装置外形结构,如落地箱式结构及挂墙式控制箱结构。
落地箱式结构配电箱,刀开关操作手柄安装于箱前右柱上部;可以作为切换电源之用。配电箱前面根据需要可安装电压表,指示汇流母线的电压。配电柜(箱)前面有门,门打开后,配电箱内全部设备敞露、便于检修维护。本配电箱均采用国内自行设计的成型组件,具有结构紧凑,检修方便,线路方案可以灵活组合等特点。配电箱除装有空气断路器和熔断器作为短路保护外,还装有接触器和热继电器,箱前门可装操作按钮和指示灯。
电源母线可由箱体顶板的敲落孔接入,也可以电缆沟中由箱体的底部接入箱顶,上有四个吊环螺钉,供运输、安装检修用,动力箱底架.上装有接地装置,安装 后应接地。
主要技术参数

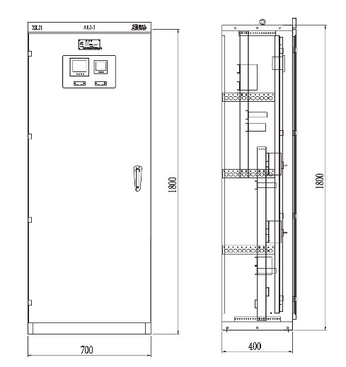
开关柜外形及尺寸

Copyright © 2021 金年会下载 All rights reserved 冀ICP备20001050号-4
