浏览量:
1000
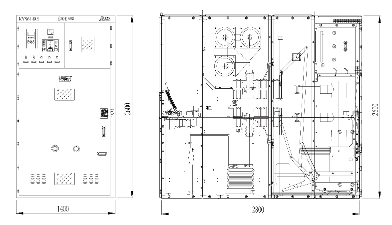
KYN61-40.5铠装移开式交流金属封闭开关设备
零售价
0.0
元
市场价
元
浏览量:
1000
产品编号
B004
数量
-
+
库存:
0
产品描述
参数
产品介绍
KYN61-40.5铠装移开式交流金属封闭开关柜适用于三相交流50Hz额定电压40.5kV的电力系统中,作为发电厂、变电站及工矿企业的配电室接受和分配电能之用,对电路起到控制、保护和检测等功能,还可用于频繁操作的场所。本开关柜性能符合GB3906- 2006及DL 404等标准。
使用环境条件
海拔高度不超过1000m
环境温度上限+40°C,且24小时内测得的平均值不超过35°C;下限-15°C.
相对湿度日平均值不超过95%,月平均值不超过90%.
水蒸气压力日平均值不超过2.2kPa,月平均值不超过90%.
周围环境没有火灾、爆炸危险、严重污秽、化学腐蚀、剧烈震动的场所
地震烈度不超过8度
型号及其含义

结构特点
采用热缩绝缘材料及环氧涂覆绝缘工艺优化电极形状柜体结构紧凑。
开关柜体选用冷轧钢板经数控钣金加工成形后通过高强度螺栓螺母和铆螺母连接而成,构件表面采用喷塑或镀锌工艺。
系列六氟化硫断路器,以满足不同用户的要求。
开关柜各功能小室均采用金属隔板封隔,并设有独立的压力释放通道。
断路器、接地开关等操作均可在柜门关闭情况下进行,即可实现关门]操作。
手车、断路器、接地开关和后柜门之间设有防止误操作的机械联锁装置"五防”功能齐全,安全可靠。
主要技术参数

开关柜外形及尺寸

扫二维码用手机看
下一个
无
Copyright © 2021 金年会下载 All rights reserved 冀ICP备20001050号-4
